Заклади медичного призначення

Проєктування медичних закладів – один із напрямків нашої роботи. Ми розробляємо сучасні та ефективні рішення, які сприяють створенню комфортного й безпечного середовища для пацієнтів і медичного персоналу. У своїх проєктах ми враховуємо всі актуальні будівельні та санітарні норми, забезпечуючи високий рівень функціональності, ергономіки та відповідність вимогам сфери охорони здоров’я. Маємо досвід проєктування хірургічних, терапевтичних відділень, реабілітаційних центрів, тощо.

Перинатальний центр обласної клінічної лікарні 
Закарпатська область, м. Ужгород

Капітальний ремонт хірургічного та радіологічного корпусів обласного онкологічний диспансер
Київ, вул. Загорівська, 1

Центр заготовлі та переробки плазми
BIOPHARMA
Київ, вул. Івана Мазепи, 1

Капітальний ремонт лікувальний корпусів обласного онкологічного диспансера
Київська область, смт Клавдієво-Тарасове

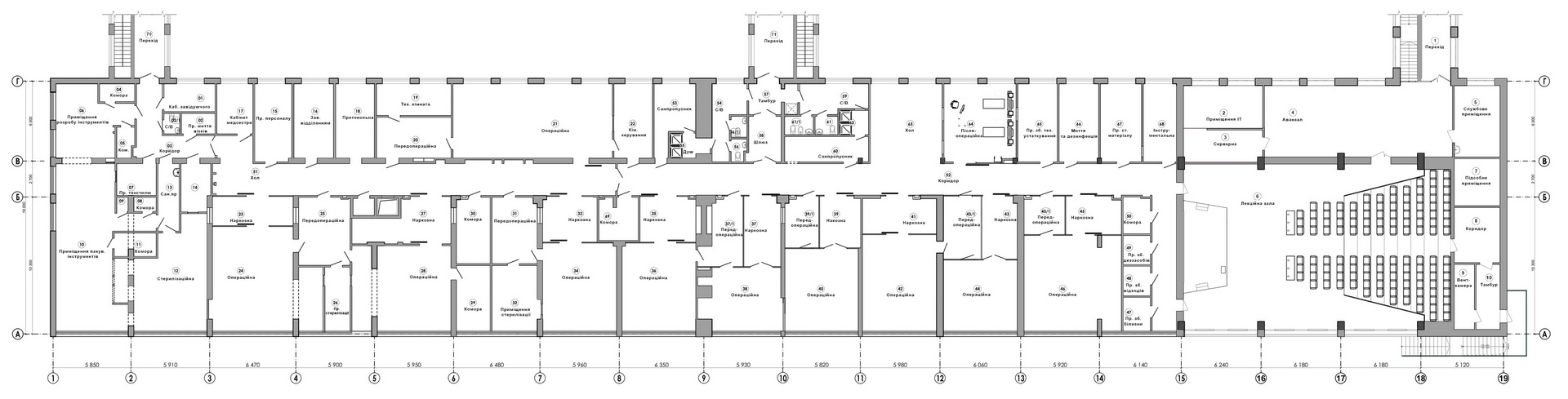
Операційне відділення міської лікарні
Київ, вул. Солом'янська, 17

Капітальний ремонт під потреби відділення протезування для міської лікарні
Київ, вул. Професора Підвисоцького, 4а

Реконструкція частини корпусів інститут кардіології
Київ, вул. Святослава Хороброго, 5

Реабілітаційний центр міської лікарні
Київ, вул. Солом'янська 17

Виробниче підприємство медичного призначення
Київська область, с. Дмитрівка