Захисні споруди цивільного захисту (укриття)

Окремим напрямком нашої діяльності є проєктування укриттів для захисту населення від ракетних ударів. Ми розробляємо сучасні, надійні та безпечні рішення для забезпечення цивільного та промислового захисту. Наші проєкти враховують актуальні норми та стандарти безпеки, забезпечуючи людям можливість надійного укриття у разі надзвичайних ситуацій. 

Протирадіаційне укриття на території  ліцею "Лідер"
Київська область, с. Крюківщина

Метою проекту є – забезпечити учнів, відвідувачів та персонал навчального закладу укриттям під час повітряних атак чи ситуацій які загрожують життю. Укриття є напівпідземним з обвалуванням. Планувальними рішеннями передбачено окремі приміщення для відвідувачів навчального закладу, та зали для персоналу. А також складські, інженерні та технічні приміщення,
які забезпечують життєдіяльність споруди. Укриття розраховане на 1050 відвідувачів. Виконано проєктні роботи стадії проєкт і робоча документація.

Протирадіаційне укриття на території  ліцею "Лідер"
Київська область, с. Крюківщина

Протирадіаційне укриття на території школи №1
Київська область, м. Вишневе

Метою проекту є – забезпечити учнів, відвідувачів та персонал навчального закладу укриттям під час повітряних атак чи ситуацій які загрожують життю. Укриття є напівпідземним з обвалуванням. Укриття розраховане на 1000 відвідувачів. Виконано проєктні роботи стадії проєкт і робоча документація.

Протирадіаційне укриття технічного та економіко-правового фахового 
коледжу
Київська область, м. Тараща

Метою проекту є – забезпечити здобувачів освіти укриттям під час повітряних атак чи ситуацій які загрожують життю. Укриття є напівпідземним з обвалуванням. Укриття розраховане на 600 відвідувачів. Виконано проєктні роботи стадії проєкт і робоча документація.

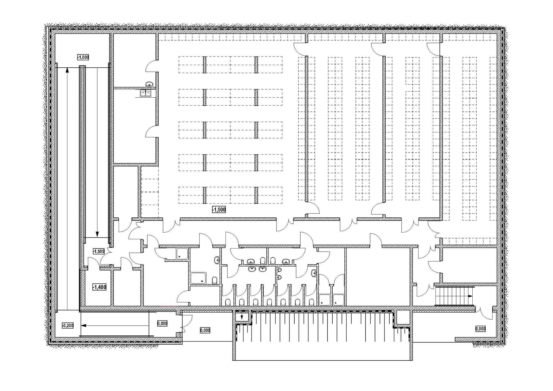
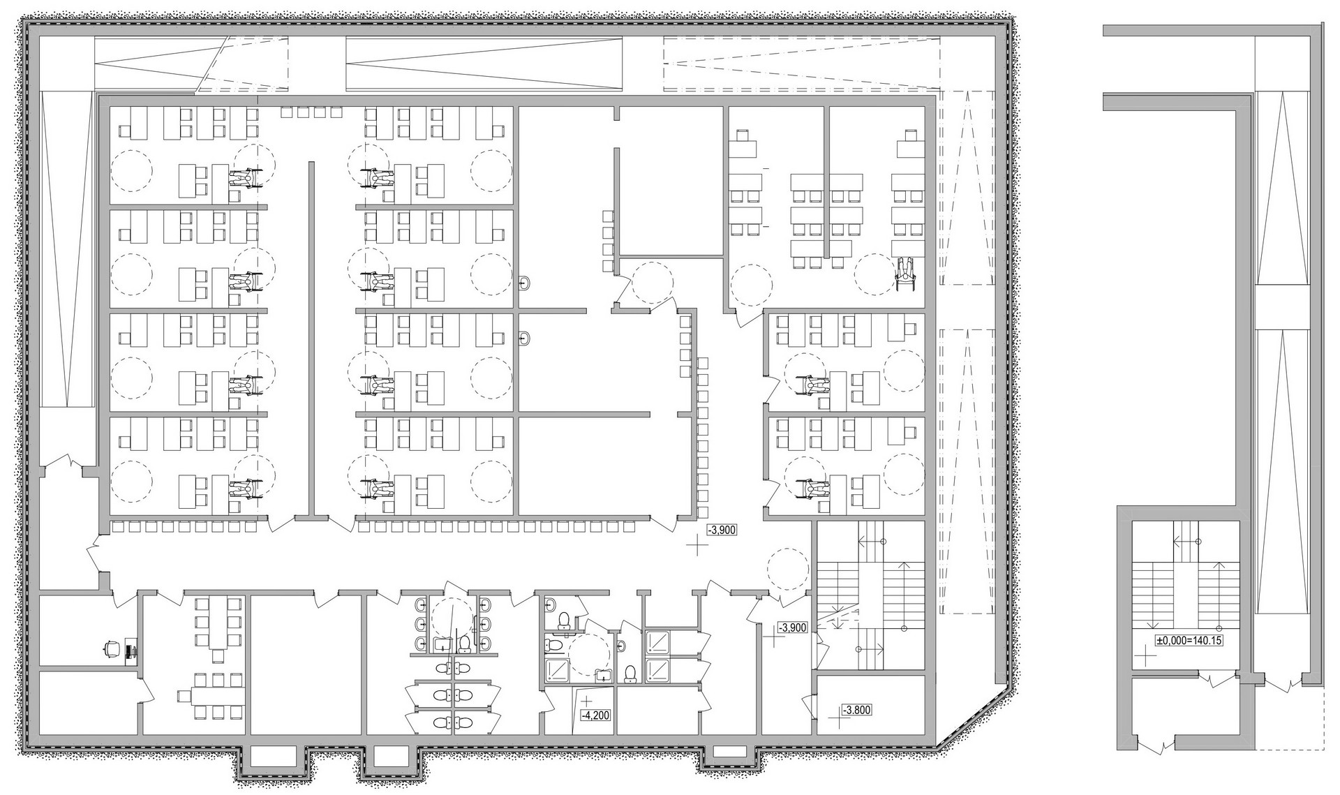
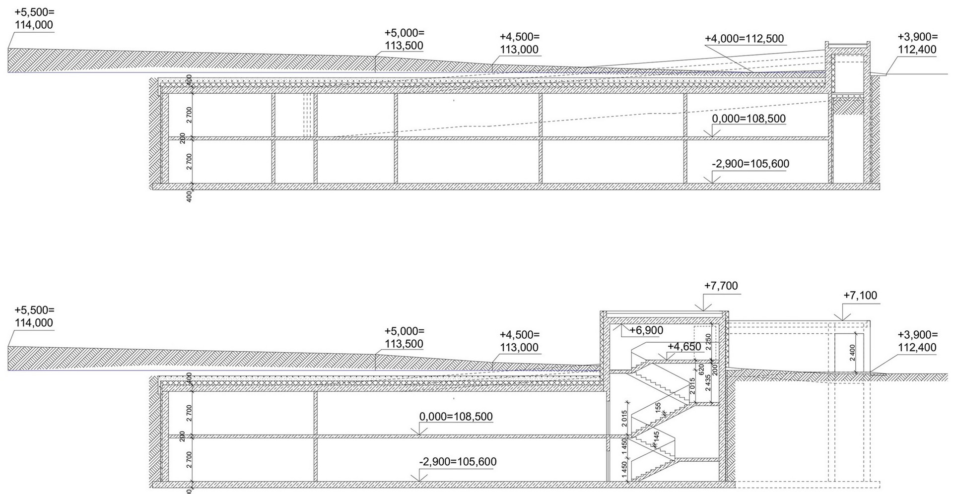
Протирадіаційне укриття на території  ліцею №4
Київська область, м. Пирятин

План -1 поверху

План -2 поверху

Протирадіаційне укриття розраховане на 1000 учнів, відвідувачіів і персоналу навчального закладу. Було поставлено завдання розмітити укриття на невеликій ділянці землі. Єдиним правильним рішенням було організувати розміщення 2-х поверхового укриття. 

Протирадіаційне укриття на території школи №2 інформаційних технологій. 
Черкаська область, м. Золотоноша

Протирадіаційне укриття на території ліцею. 
Черкаська область, с. Бобриця

Споруда подвійного призначення складських приміщень (ПРУ).
Київська область, селище Калинівка

Протирадіаційне укриття на території 
Київська область, селище Калинівка